Projekt - Einfamilienhaus
Plandigitalisierung eines Einfamilienhauses sowie anschließende Umplanung inkl. Bauantrag und Ausführungsplanung
Projektbeschreibung
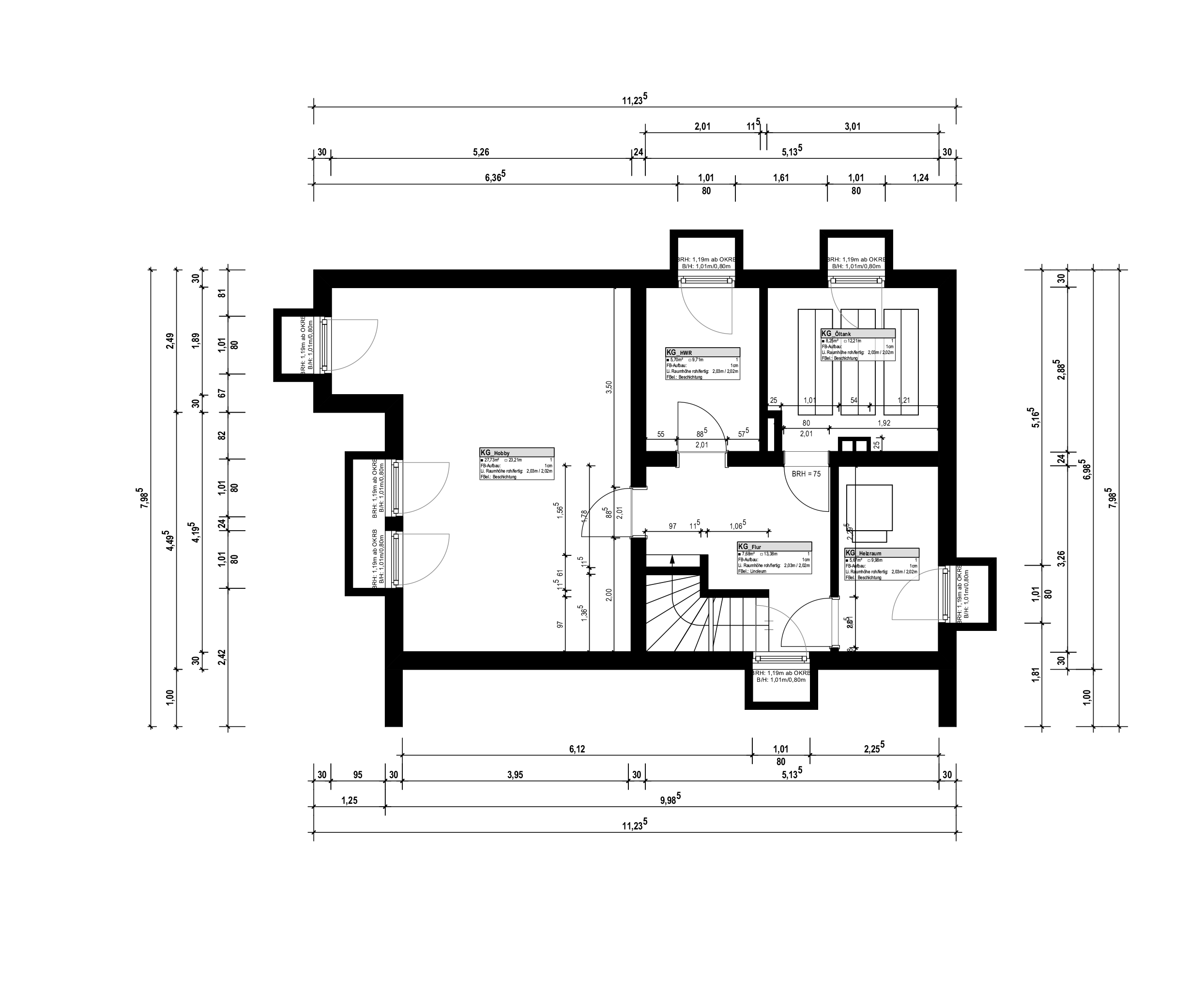
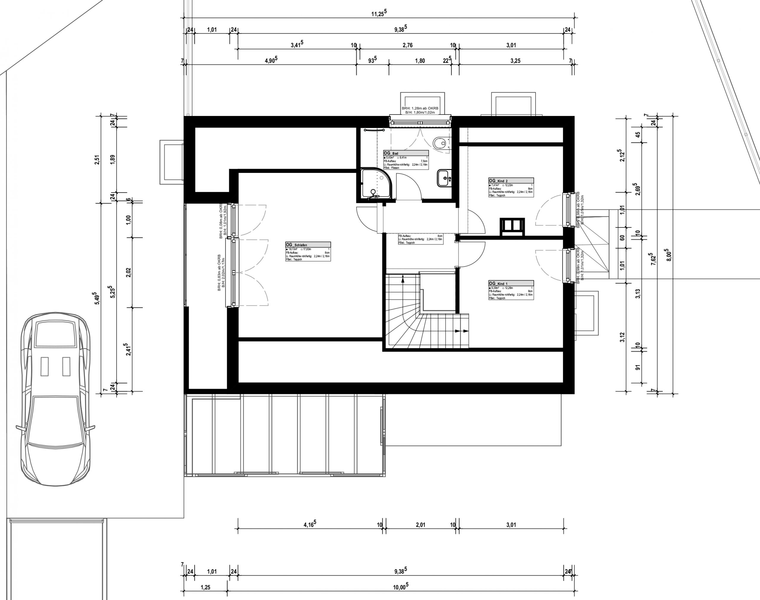
Im Jahr 2024 wurde dieses Projekt mit dem Ziel umgesetzt, den Bestand eines Gebäudes zu digitalisieren und um einen Erweiterungsbau zu ergänzen. Neben der Entwurfs- und Ausführungsplanung wurde auch der Bauantrag erstellt. Besonderen Wert legte der Bauherr darauf, den authentischen Charakter des Gebäudes zu bewahren, sodass es seine Geschichte widerspiegelt und nicht wie ein cleaner Neubau wirkt.
Das Gebäude umfasst ein Kellergeschoss, ein Vollgeschoss, ein ausgebautes Dachgeschoss sowie einen Dachspeicher. Im Rahmen der Planung wurden die Bestandselemente des Gebäudes umgeplant, um neue Raumfunktionen zu schaffen. Gleichzeitig wurden alle technischen Installationen – Heizung, Sanitär und Elektro – erneuert, um den modernen Anforderungen gerecht zu werden.
Leistungen im Überblick
- Digitalisierung der Bestandspläne
- Entwurfs- und Ausführungsplanung
- Bauantrag
- Koordination der Fachplaner