DIGITALISIERUNG


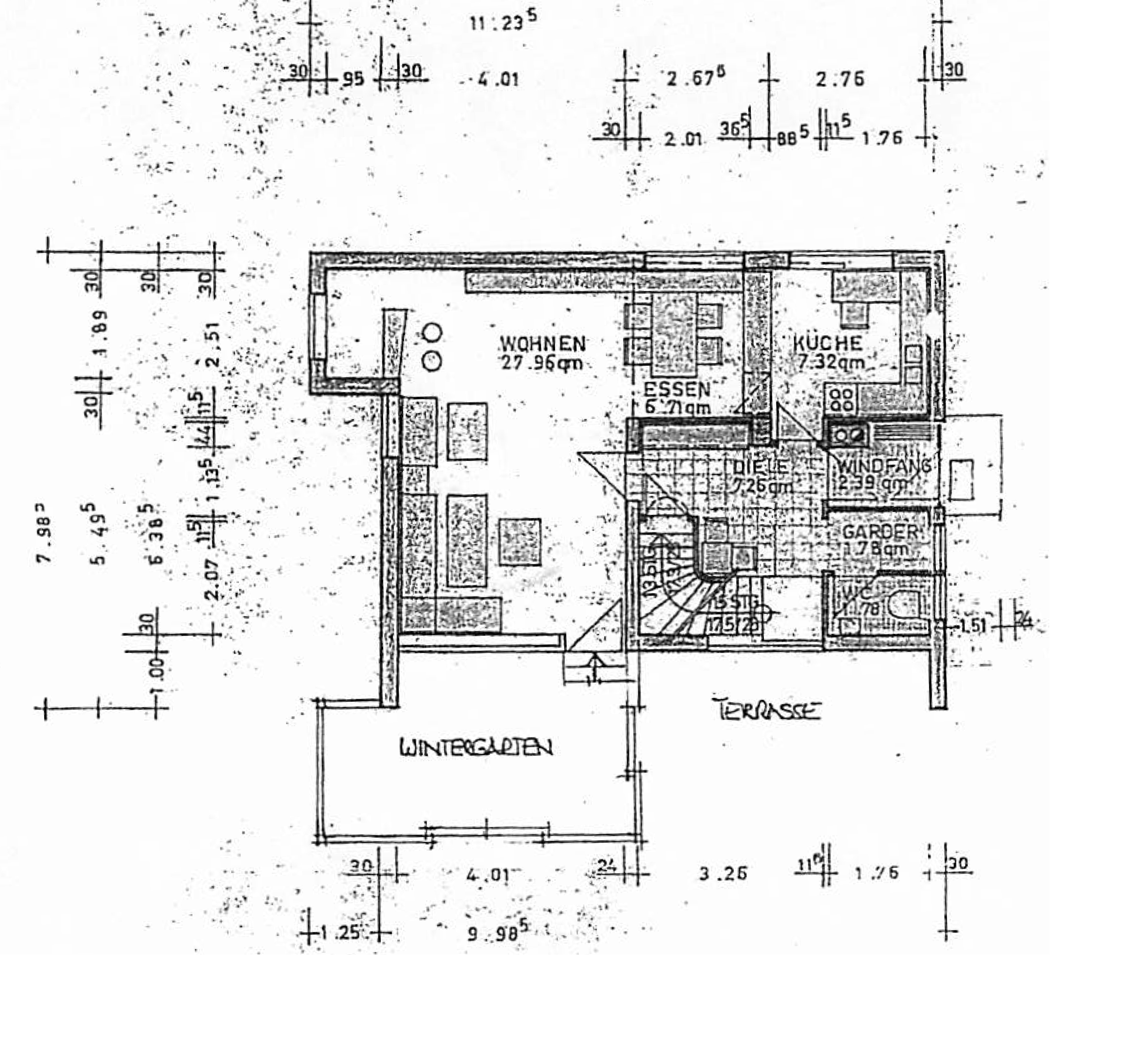
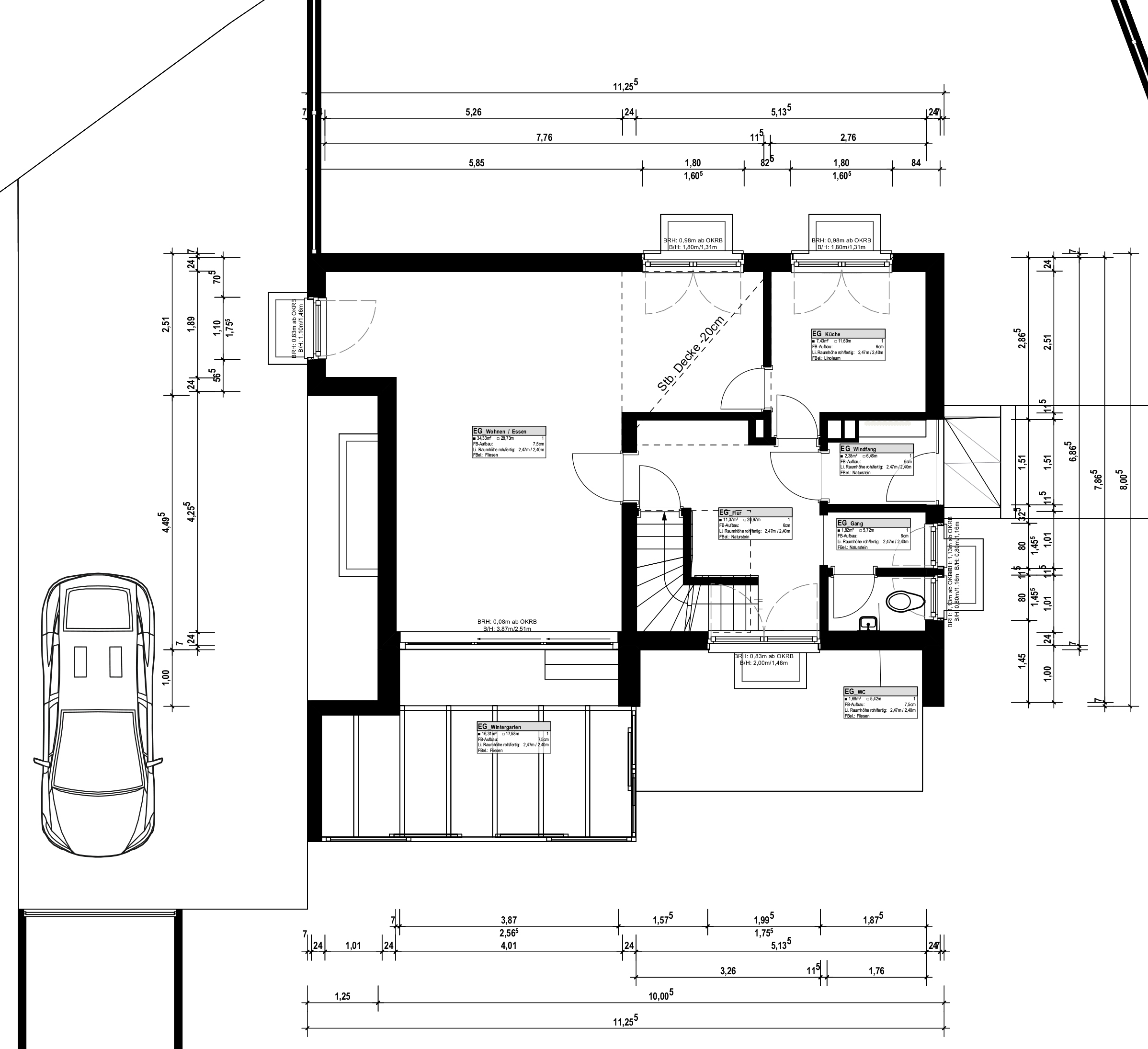
Plandigitalisierung eine Einfamilienhaus
Digitalisierung alter Bestandspläne eines freistehenden Einfamilienhauses zur späteren Umplanung
Leistungsumfang:
Kellergeschoss, Erdgeschoss, ausgebautes Dachgeschoss, Dachspeicher, Schnitte, Ansichten, Lageplan
>>> Zum Projekt <<<
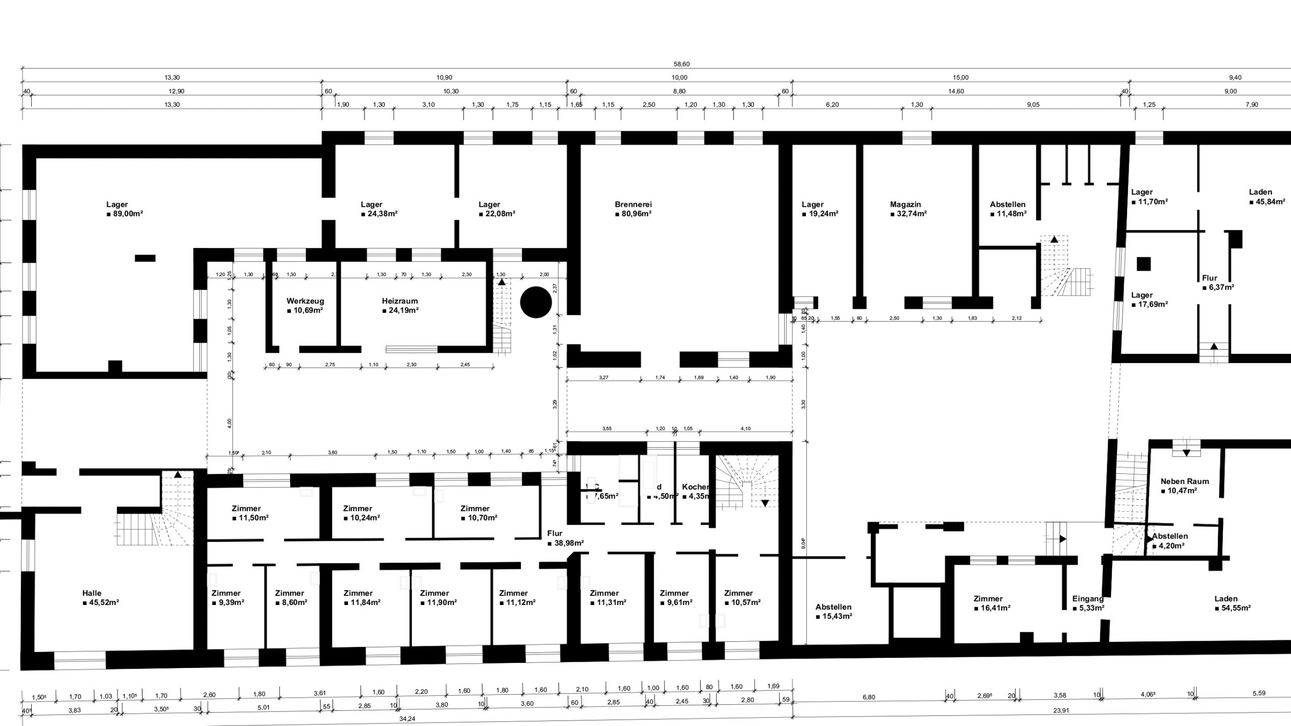
Plandigitalisierung eines Studentenwohnheims
Digitalisierung alter Bestandspläne eines Studentenwohnheimes als Plangrundlage zur Erstellung von Flucht- und Rettungsplänen


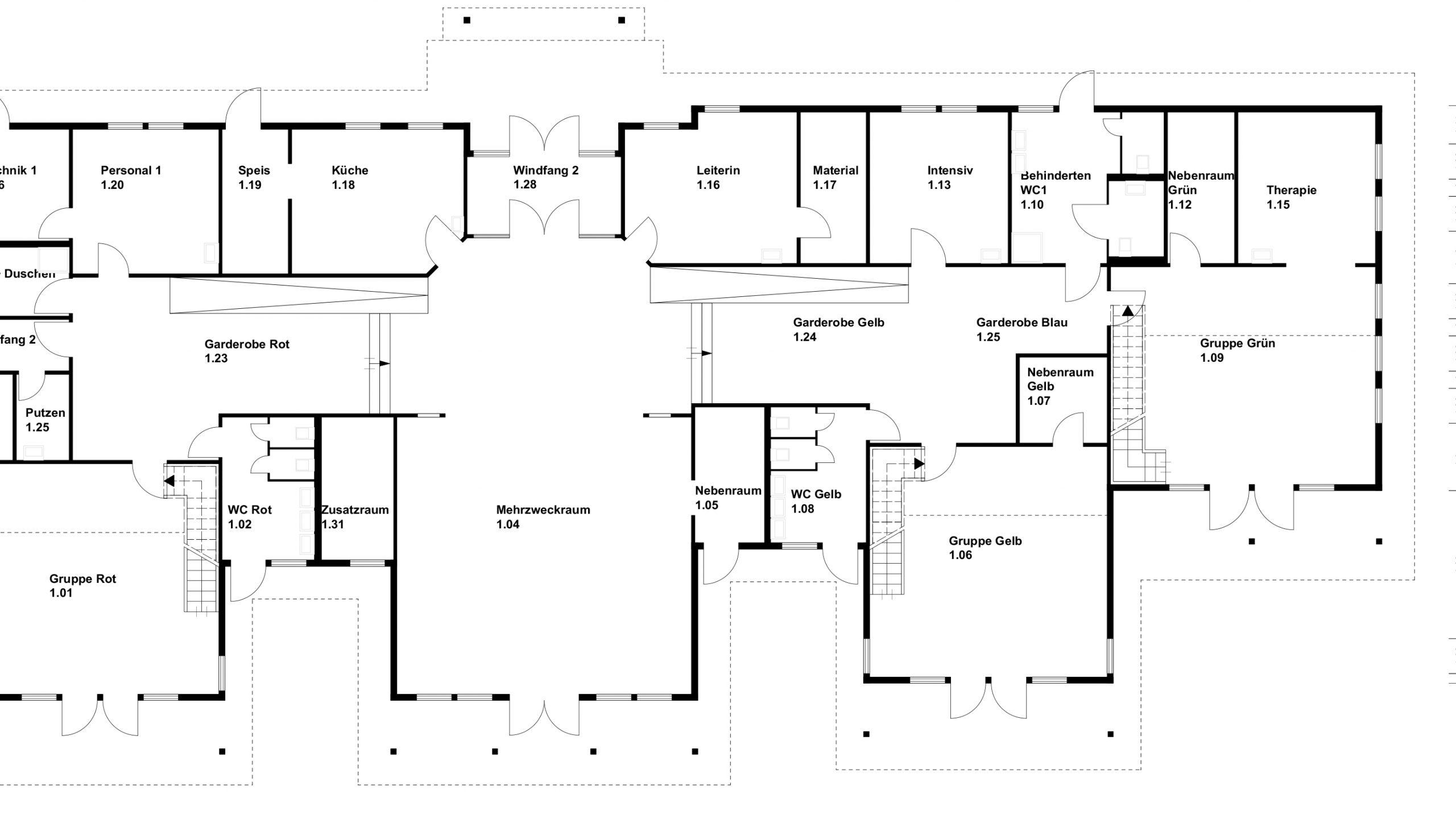
Plandigitalisierung eines Kindergartens
Digitalisierung alter Bestandspläne eines Kindergartens als Plangrundlage zur Erstellung von Flucht- und Rettungsplänen


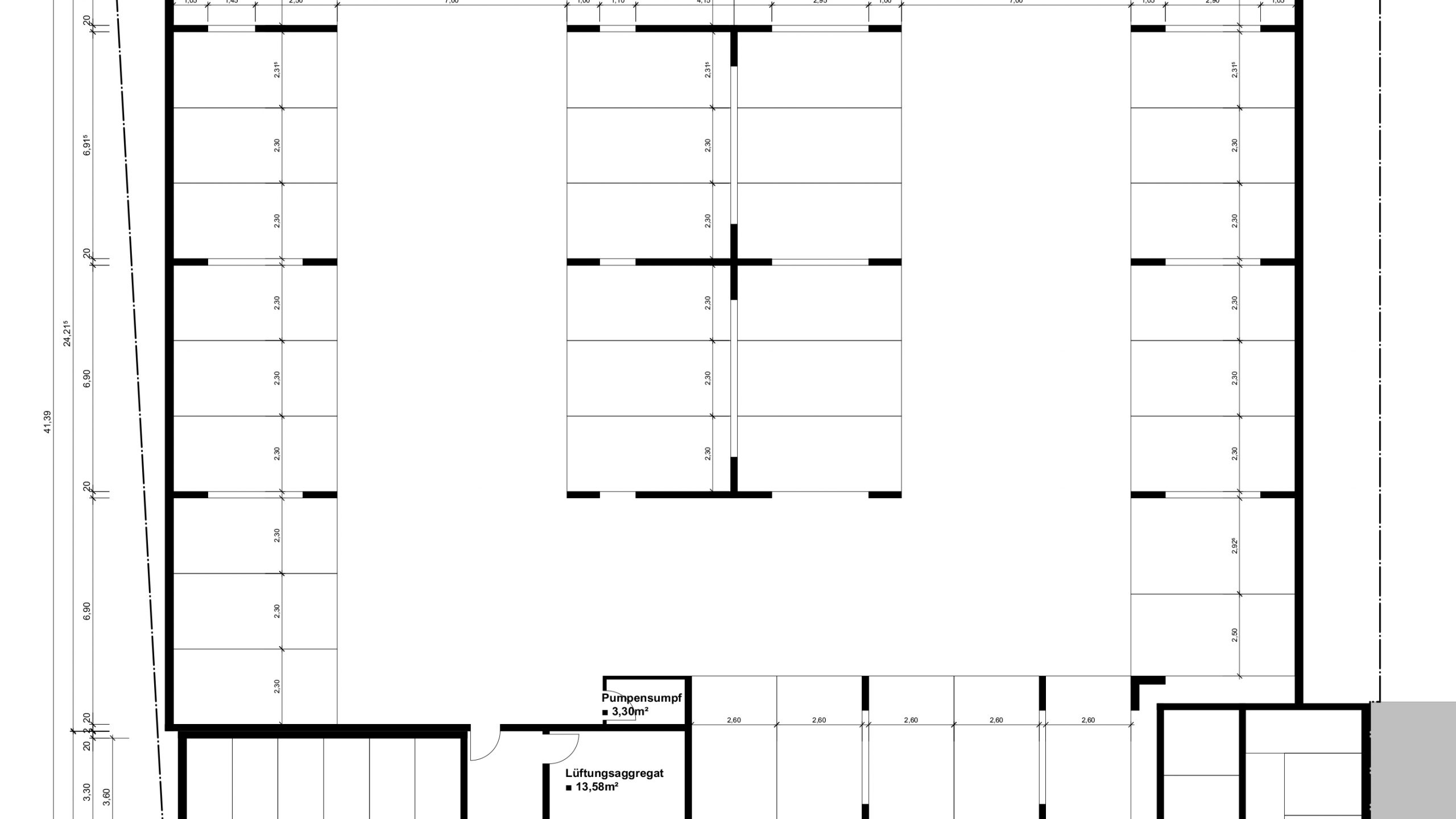
Plandigitalisierung eine Studentenwohnheims mit Tiefgarage
Digitalisierung alter Bestandspläne eines Studentenwohnheimes als Plangrundlage zur Erstellung von Flucht- und Rettungsplänen

